Мы начали строить модульные дома, потому что время и качество стали главными ценностями. Традиционное строительство часто слишком медленное, дорогое и зависимое от погоды и человеческого фактора.
Модульные технологии позволяют собирать здания как конструктор. Все части дома производятся на заводе в идеальных условиях, где проще контролировать каждую деталь. Это гарантирует высочайшее качество и точность.
На участке же мы лишь быстро и четко соединяем готовые модули. Такой подход в разы ускоряет процесс, делает его чище и предсказуемее по стоимости.
В итоге мы получаем не просто быстровозводимое жилье, а современные, энергоэффективные и надежные дома, строящиеся в сжатые сроки. Это логичный шаг вперед от хаоса стройплощадки к заводской культуре в жилье.
Посмотрите видео обзор нашего дома
ПРОИЗВОДИМ ДОМА КЛИЕНТАМ, КАК ДЛЯ СЕБЯ!
Мы начали строить модульные дома, потому что время и качество стали главными ценностями. Традиционное строительство часто слишком медленное, дорогое и зависимое от погоды и человеческого фактора.
Модульные технологии позволяют собирать здания как конструктор. Основные части дома производятся на заводе в идеальных условиях, где проще контролировать каждую деталь. Это гарантирует высочайшее качество и точность.
На участке же мы лишь быстро и четко соединяем готовые модули. Такой подход в разы ускоряет процесс, делает его чище и предсказуемее по стоимости.
В итоге мы получаем не просто быстровозводимое жилье, а современные, энергоэффективные и надежные дома, строящиеся в сжатые сроки. Это логичный шаг вперед от хаоса стройплощадки к заводской культуре в жилье.
Посмотрите видео обзор нашего дома
Без строительства на участке
Мы производим весь домокомплект на собственном производстве в г. Батайск, включая внутреннюю и внешнюю отделку, что исключает мусор и грязь на вашем земельном участке, влияние погодных условий на сроки изготовления
Готовый дом за 20 дней
За счет отработанной технологии и собственных ресурсов, мы научились возводить качественные дома за минимальное время


Проработанный конструктив и гарантия
Мы уверены в наших строениях, именно поэтому даем на них
5 лет гарантии по договору
Под ключ
Внутри наших домов уже готовый ремонт по вашему дизайну или нашим примерам, вплоть до мебели и коммуникаций
ПОСЛЕ МОНТАЖА ДОМА МОЖНО УЖЕ
В ТЕЧЕНИЕ ЧАСА НАЧАТЬ ЖИТЬ ИЛИ РАБОТАТЬ!
ПОЧЕМУ МОДУЛЬНЫЕ СТРОЕНИЯ?
Без строительства на участке
Мы производим весь домокомплект на собственном производстве в г. Батайск, включая внутреннюю и внешнюю отделку, что исключает мусор и грязь на вашему земельном участке, влияние погодных условий на сроки изготовления
Готовый дом за 20 дней
За счет отработанной технологии и собственных ресурсов, мы научились возводить качественные дома за минимальное время

Проработанный конструктив и гарантия
Мы уверены в наших строениях, именно поэтому даем на них 5 лет гарантии по договору
Под ключ
Внутри наших домов уже готовый ремонт по вашему дизайну или нашим примерам, вплоть до мебели и коммуникаций

ПОСЛЕ МОНТАЖА ДОМА МОЖНО УЖЕ В ТЕЧЕНИЕ ЧАСА НАЧАТЬ ЖИТЬ ИЛИ РАБОТАТЬ!
Мы открытая компания, и с радостью будем рады вас видеть в гостях на нашем производстве, которое находится в городе Батайск.
Запишитесь на экскурсию и узнайте про все процессы изготовления домов и бань, а также получите индивидуальное предложение!
Можно ли жить в модульном доме зимой?
Электрика в модульном доме - как все устроено внутри?
Миф или реальность. Модульные дома ненадежные?
Чем мы красим дома внутри?
Почему модульный дом - это выгоднее, чем обычный?
Можно ли перевезти модульный дом?
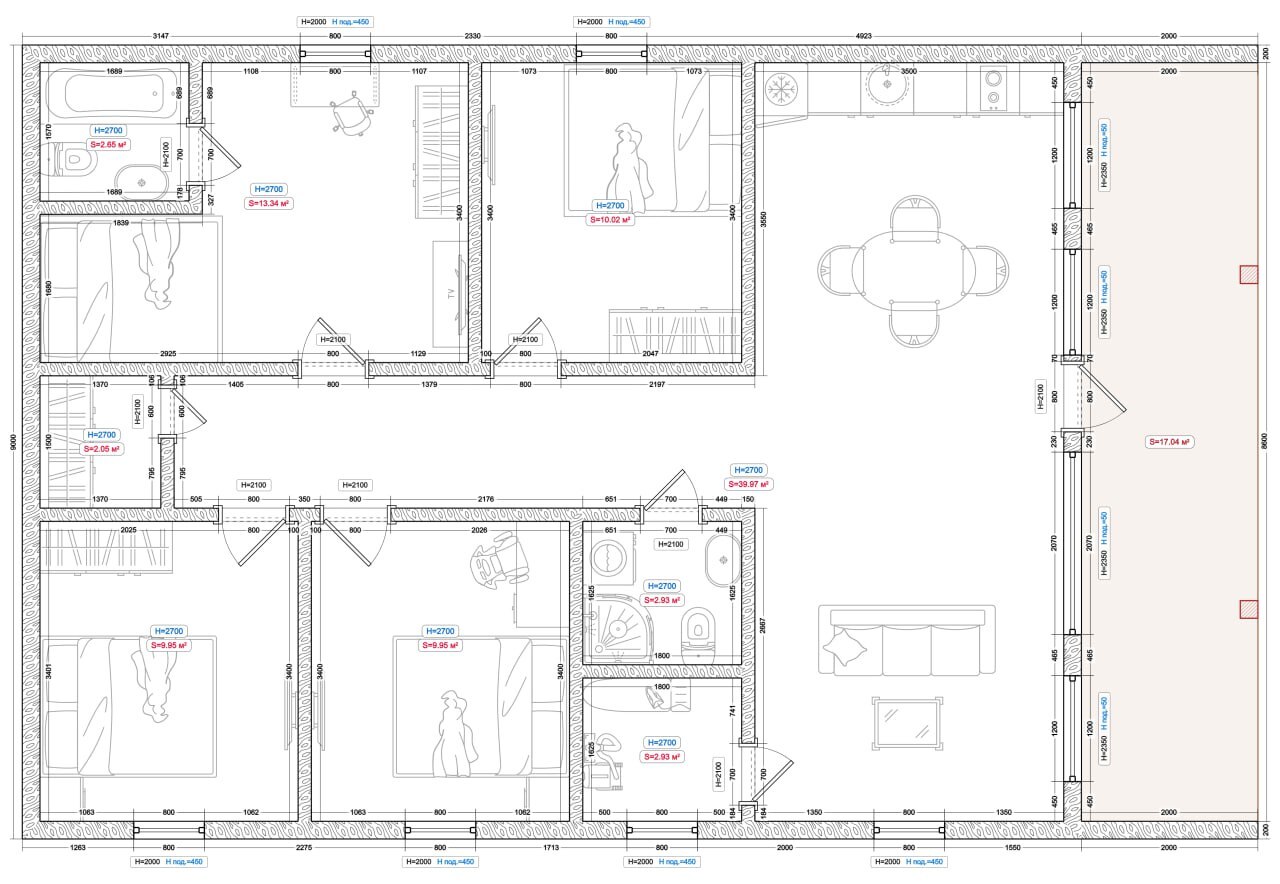
Обзор проекта «Швеция»
Сервисная служба Modul Camp
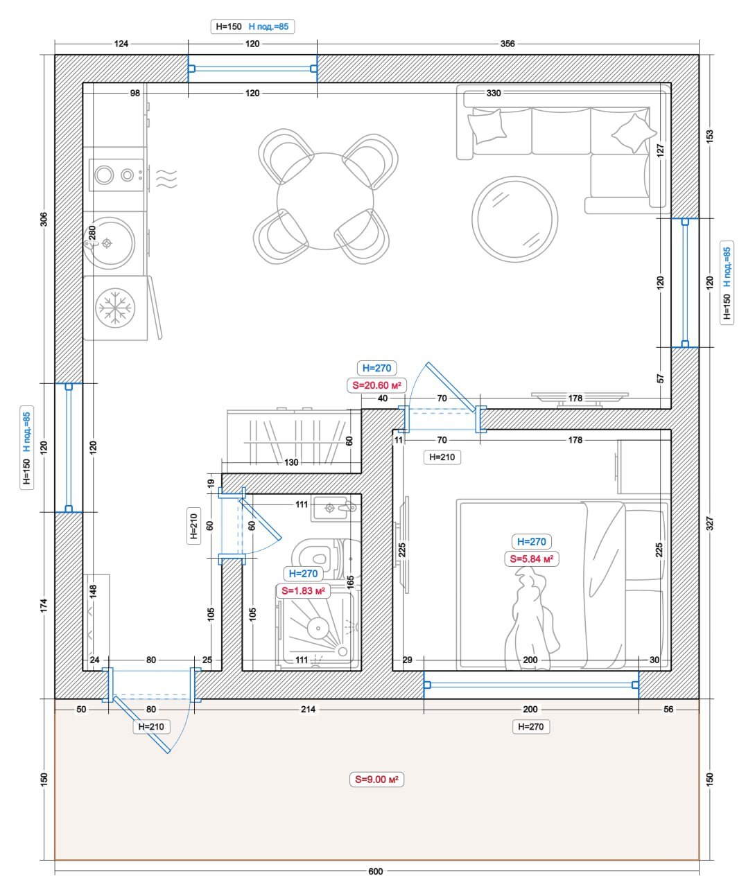
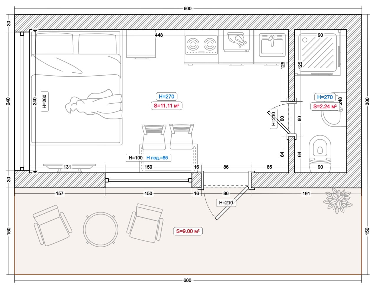
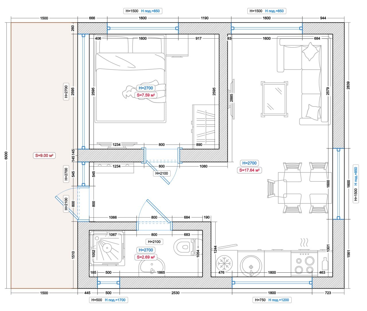
Что входит в стандартную комплектацию модульного дома?
Из чего состоит внешняя часть фасада модульного дома?
НАШЕ ПРОИЗВОДСТВО!
Мы открытая компания, и с радостью будем рады вас видеть в гостях на нашем производстве, которое находится в городе Батайск.
Запишитесь на экскурсию и узнайте про все процессы изготовления домов и бань, а также получите индивидуальное предложение!
Можно ли жить в модульном доме зимой?
Электрика в модульном доме - как все устроено внутри?
Миф или реальность. Модульные дома ненадежные?
Чем мы красим дома внутри?
Почему модульный дом - это выгоднее, чем обычный?
Можно ли перевезти модульный дом?
Обзор проекта «Швеция»
Сервисная служба Modul Camp
Что входит в стандартную комплектацию модульного дома?
Из чего состоит внешняя часть фасада модульного дома?
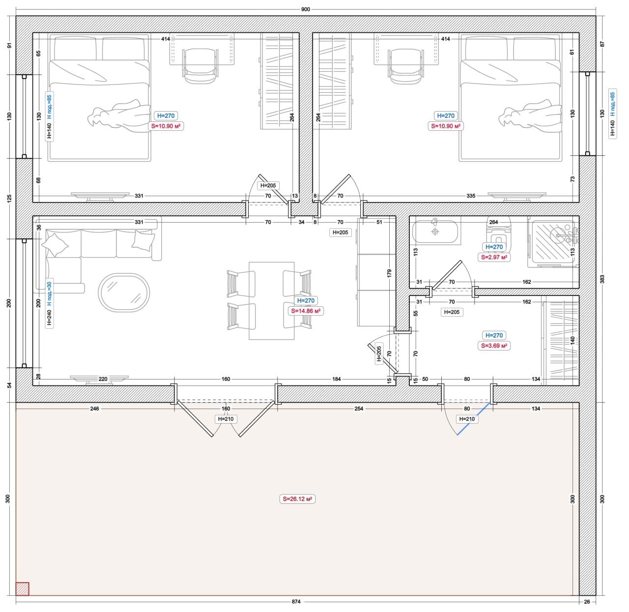
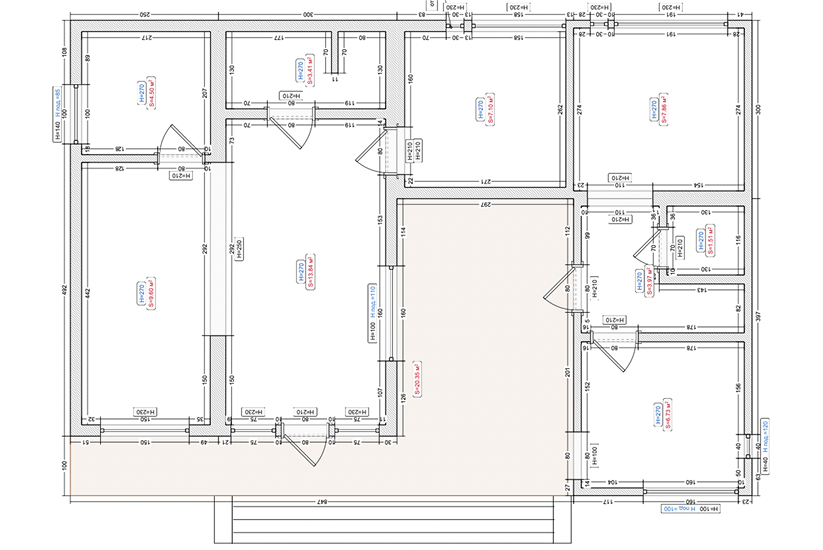
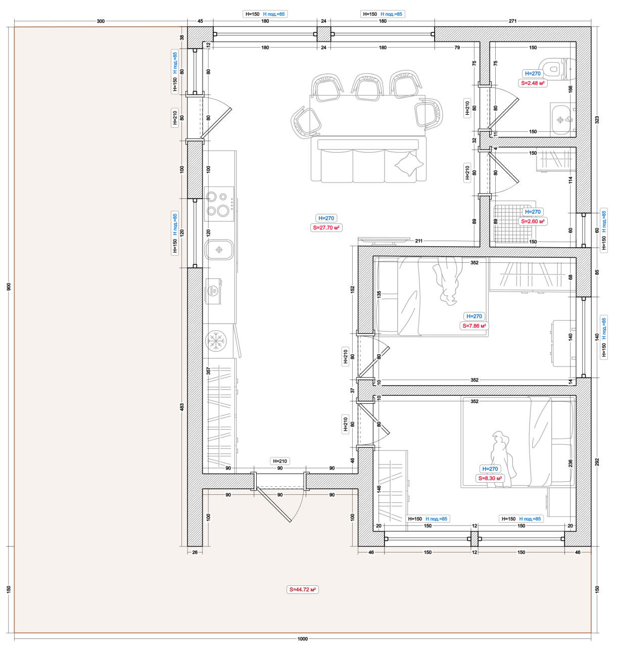
Модель "Барн-Хаус"
Комплектация Комфорт
Утепленный каркас
Кровля
Отделка фасада - чистовая
Панорамное остекление, окно, входная дверь
Вентиляция под ключ
Терраса
Коммуникации
Внутренняя отделка, двери, электрика
С/У под ключ
Подсветка фасада
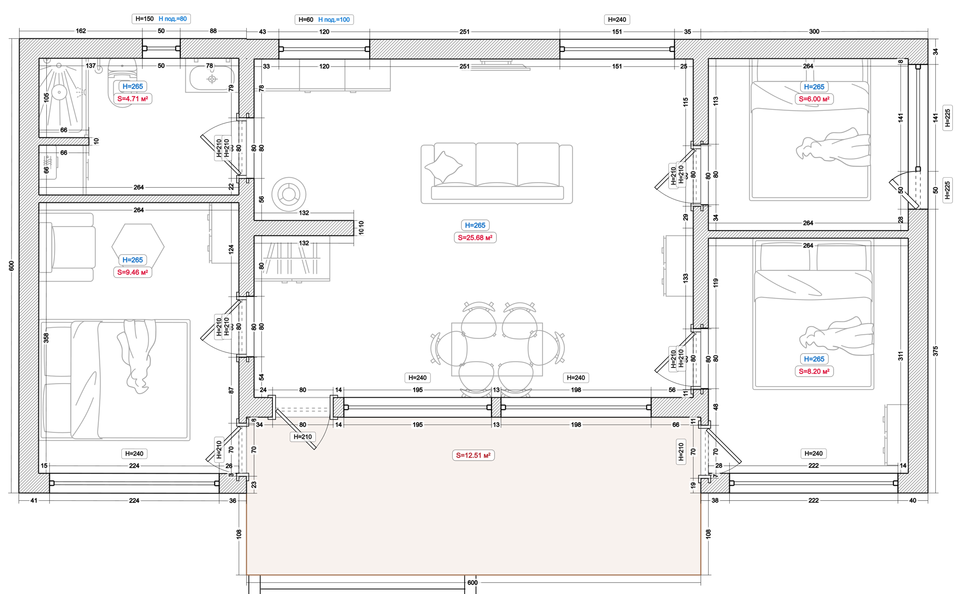
Модель "Голландия"
Комплектация Комфорт
Утепленный каркас
Кровля
Отделка фасада - чистовая
Панорамное остекление, окно, входная дверь
Вентиляция под ключ
Терраса
Коммуникации
Внутренняя отделка, двери, электрика
С/У под ключ
Подсветка фасада
Модель "Шале"
Комплектация Комфорт
Утепленный каркас
Кровля
Отделка фасада - чистовая
Панорамное остекление, окно, входная дверь
Вентиляция под ключ
Терраса
Коммуникации
Внутренняя отделка, двери, электрика
С/У под ключ
Подсветка фасада
Модель "Финляндия"
Оптимально для глэмпингов и домов под сдачу в аренду
Комплектация Комфорт
Утепленный каркас
Кровля
Отделка фасада - чистовая
Панорамное остекление, окно, входная дверь
Вентиляция под ключ
Терраса
Коммуникации
Внутренняя отделка, двери, электрика
С/У под ключ
Подсветка фасада
Модель "Австрия"
Комплектация Комфорт
Утепленный каркас
Кровля
Отделка фасада - чистовая
Панорамное остекление, окно, входная дверь
Вентиляция под ключ
Терраса
Коммуникации
Внутренняя отделка, двери, электрика
С/У под ключ
Подсветка фасада
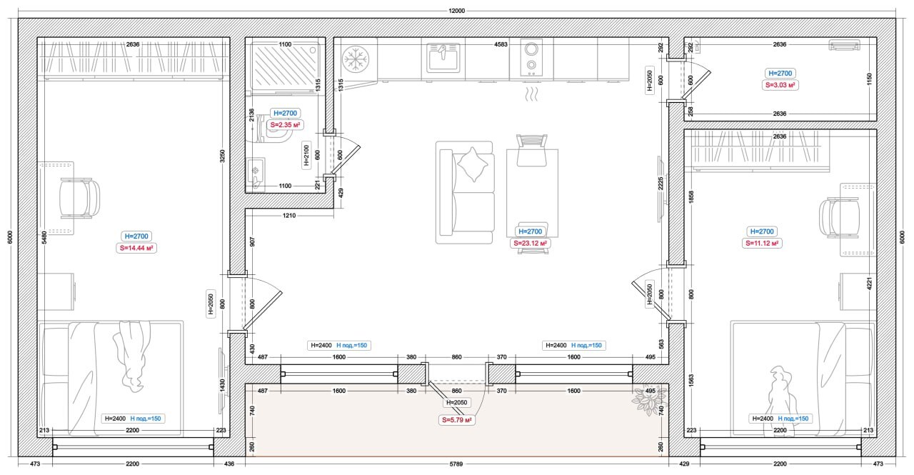
Модель "Швейцария"
Комплектация Комфорт
Утепленный каркас
Кровля
Отделка фасада - чистовая
Панорамное остекление, окно, входная дверь
Вентиляция под ключ
Терраса
Коммуникации
Внутренняя отделка, двери, электрика
С/У под ключ
Подсветка фасада
Оставьте заявку и получите полный каталог модульных решений

Модель "Барн-Хаус"
Комплектация Комфорт
Утепленный каркас
Кровля
Отделка фасада - чистовая
Панорамное остекление, окно, входная дверь
Вентиляция под ключ
Терраса
Коммуникации
Внутренняя отделка, двери, электрика
С/У под ключ
Подсветка фасада
Модель "Голландия"
Комплектация Комфорт
Утепленный каркас
Кровля
Отделка фасада - чистовая
Панорамное остекление, окно, входная дверь
Вентиляция под ключ
Терраса
Коммуникации
Внутренняя отделка, двери, электрика
С/У под ключ
Подсветка фасада
Модель "Шале"
Комплектация Комфорт
Утепленный каркас
Кровля
Отделка фасада - чистовая
Панорамное остекление, окно, входная дверь
Вентиляция под ключ
Терраса
Коммуникации
Внутренняя отделка, двери, электрика
С/У под ключ
Подсветка фасада
Модель "Финляндия"
Оптимально для глэмпингов и домов под сдачу в аренду
Комплектация Комфорт
Утепленный каркас
Кровля
Отделка фасада - чистовая
Панорамное остекление, окно, входная дверь
Вентиляция под ключ
Терраса
Коммуникации
Внутренняя отделка, двери, электрика
С/У под ключ
Подсветка фасада
Модель "Дания"
Комплектация Комфорт
Утепленный каркас
Кровля
Отделка фасада - чистовая
Панорамное остекление, окно, входная дверь
Вентиляция под ключ
Терраса
Коммуникации
Внутренняя отделка, двери, электрика
С/У под ключ
Подсветка фасада
Модель "Австрия"
Комплектация Комфорт
Утепленный каркас
Кровля
Отделка фасада - чистовая
Панорамное остекление, окно, входная дверь
Вентиляция под ключ
Терраса
Коммуникации
Внутренняя отделка, двери, электрика
С/У под ключ
Подсветка фасада
Модель "Швейцария"
Комплектация Комфорт
Утепленный каркас
Кровля
Отделка фасада - чистовая
Панорамное остекление, окно, входная дверь
Вентиляция под ключ
Терраса
Коммуникации
Внутренняя отделка, двери, электрика
С/У под ключ
Подсветка фасада
Модель "Скандинавия"
Комплектация Комфорт
Утепленный каркас
Кровля
Отделка фасада - чистовая
Панорамное остекление, окно, входная дверь
Вентиляция под ключ
Терраса
Коммуникации
Внутренняя отделка, двери, электрика
С/У под ключ
Подсветка фасада
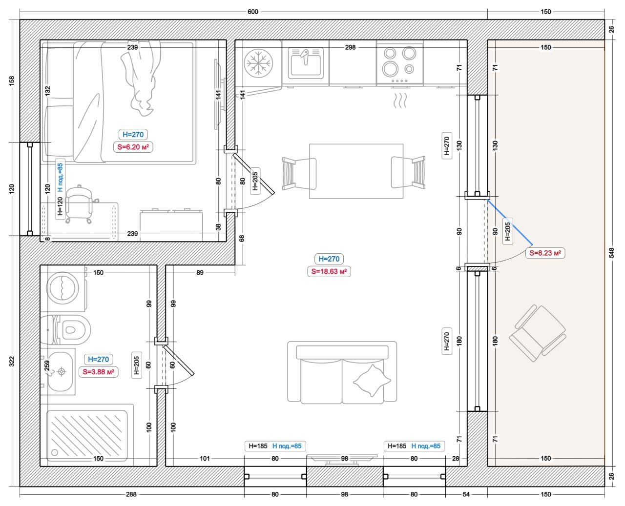
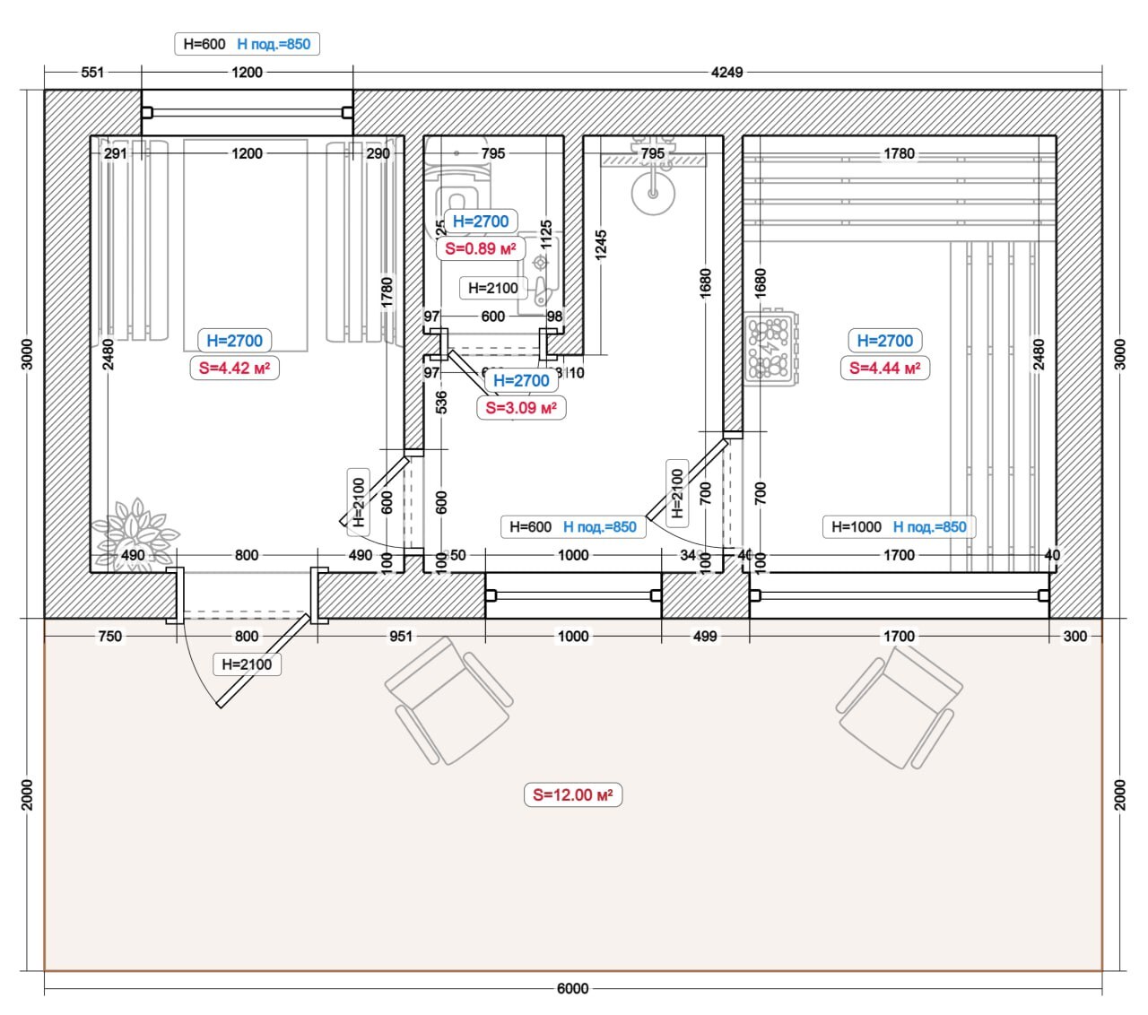
Баня - Экстра
Комплектация Комфорт
Утепленный каркас
Кровля
Отделка фасада - чистовая
Панорамное остекление, окно, входная дверь
Вентиляция под ключ
Терраса
Коммуникации
Внутренняя отделка, двери, электрика
С/У под ключ
Электронная печка
Отделка парной
Оставьте заявку и получите каталог модульных решений

ВЫБЕРИТЕ СВОЙ ПРОЕКТ И МЫ СДЕЛАЕМ ВАМ ПЕРСОНАЛЬНОЕ ПРЕДЛОЖЕНИЕ!
© Modul Camp 2024-2026
Адрес производства: Ростовская область г. Батайск ул. Энгельса 353 е
Адрес производства: Ростовская область г. Батайск ул. Энгельса 353 е
© Modul Camp 2024-2026